top of page
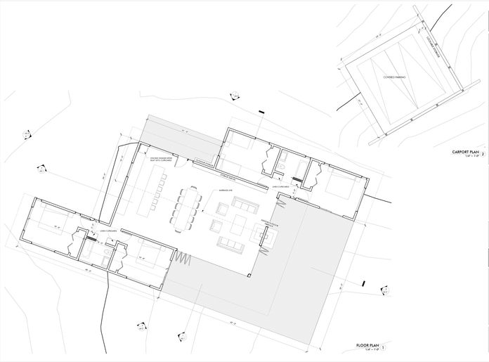
Project: Desert Pre-Fab House Concept, 2017
Location: Mojave Desert, California
Team: LOC Architects - Poonam Sharma, Ali Jeevanjee, Tessa Forde
A proposal for a pre-fabricated house in the desert near Joshua Tree. The three pre-fabricated forms of the house slip past each other, maximizing the views from each and are wrapped by a large deck. Extensive eaves are under-clad with reflective sheet metal, creating a strange illusion from the interior.

bottom of page




